on demand

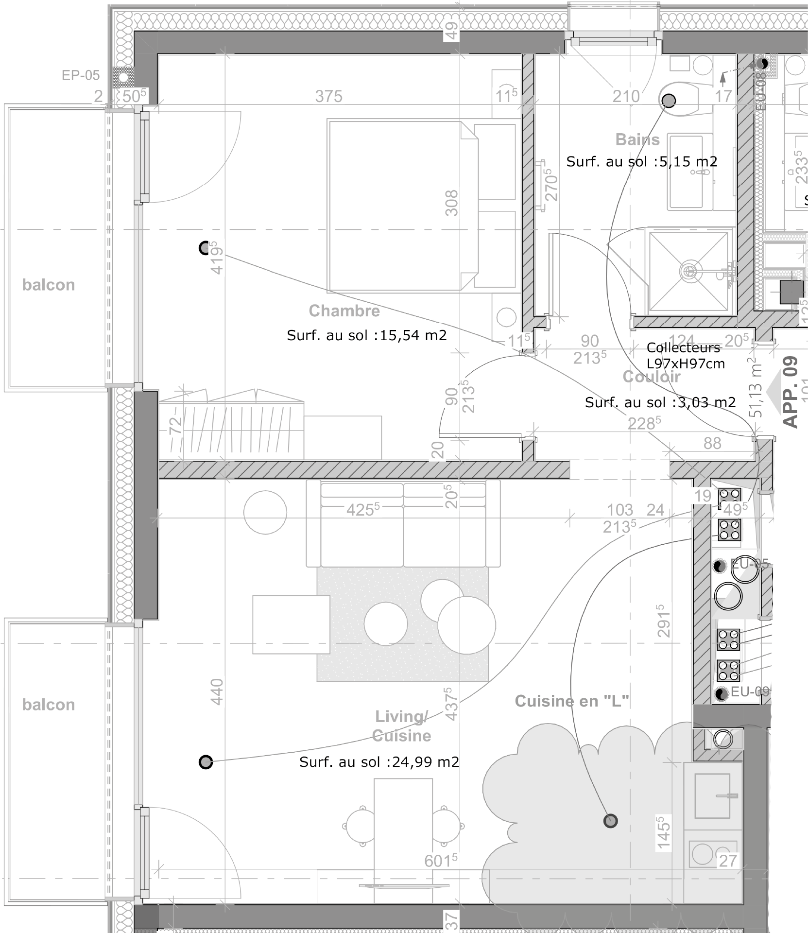
This superb 52 m² furnished apartment features a fully equipped kitchen looking out on the living and dining room, a bathroom with a separate lavatory and a bedroom. It is also provided with a balcony.

This apartment has a cellar and optional an underground garage.

Same Floor Units