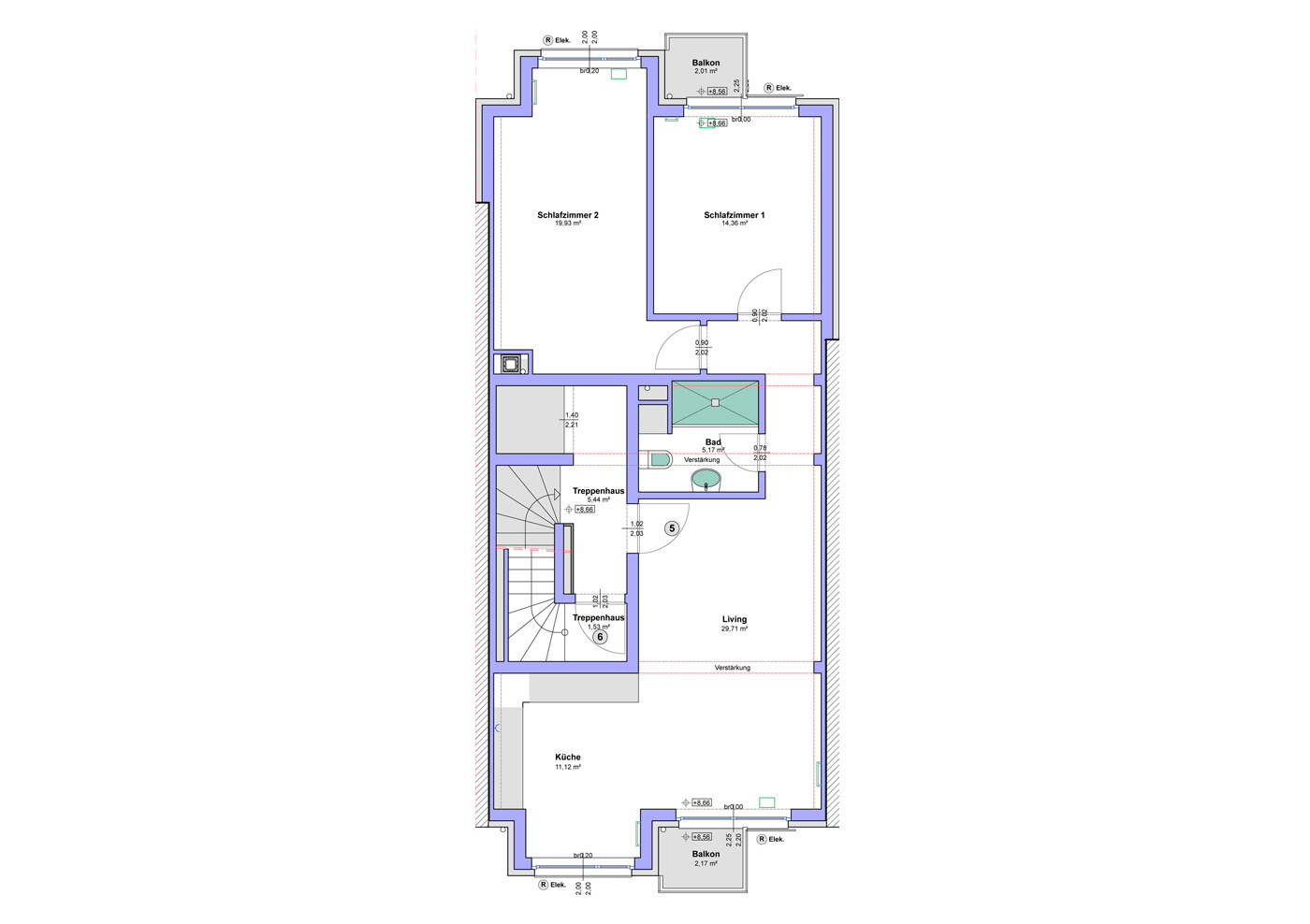
This superb 44,41m2 furnished apartment features a fully equipped kitchen looking out on the living and dining room, a bathroom with a separate lavatory and a bedroom. It is also provided with a furnished balcony measuring 12,28m2.
This apartment has a cellar and an underground garage.